网站首页  百科知识

请输入您要查询的百科知识:

 

词条 油料剥壳机
类别 中文百科知识
释义

油料剥壳机oil seed decorticator

通过机械方法破碎和剥离油料种子外壳的机器。油料种子的外壳多由木质纤维素组成,并含有一定的色素,而含油量极少。在油料制油前,用油料剥壳机将外壳剥掉,可以降低油分的损失,改善毛油和饼粕的质量,提高制油设备的处理量,减少机件的磨损。
油料剥壳机根据不同油料外壳特性的不同,与之相应的剥壳机采用的剥壳原理也不相同,因而形成有多种类型的剥壳机。常用的主要有: 借助搓碎作用的圆盘式剥壳机;借助剪切作用的刀板式剥壳机;借助挤压和撞击作用的刀笼式剥壳机;借助离心冲击作用的离心式剥壳机等。
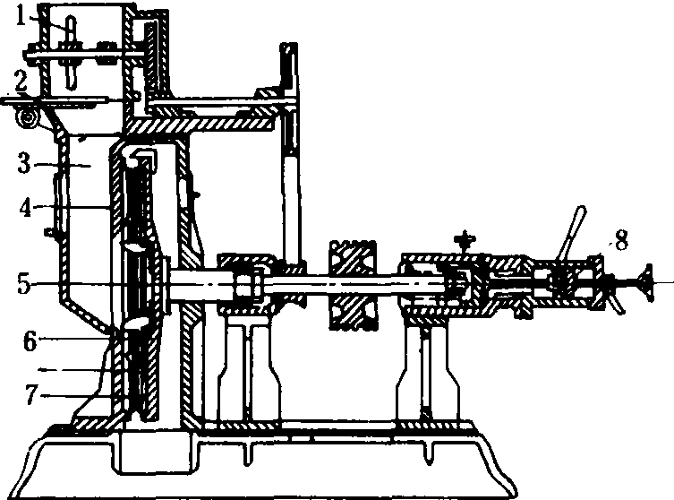
圆盘式剥壳机 结构如图1。其主要工作部件是一个固定圆盘和一个转动圆盘。两个圆盘的相对工作面是由几块扇形齿纹板组成的环形磨片。磨片常用冷硬铸铁制成,表面有细密的方格齿纹或斜条齿纹。转动圆盘装在旋转轴的一端,另一端装有调节机构,借以调节两个圆盘的间隙。油料从固定圆盘的中心孔进入两个磨片之间,转动圆盘在旋转时所产生的搓碎作用使油料外壳破碎和剥离。圆盘式剥壳机是油厂最常见的油料剥壳设备,主要适用于棉籽剥壳;也可用于花生果、油桐籽和油茶籽剥壳;还可用于破碎大豆、花生仁以及油饼。

图1 圆盘式剥壳机

1.喂料翼; 2.调节板; 3.通道; 4.固定圆盘; 5.转动圆盘; 6、7.磨片; 8.圆盘间隙调节器


圆盘式剥壳机的主要参数是磨片外径,有915、864、710和610毫米等几种规格。转动圆盘的转速为900~1 200转/分,配备30、22、14和7.5千瓦的电动机。剥壳能力依磨片外径和油料品种的不同而异,较小的为12吨/日,一般为35吨/日左右,较大的达50~60吨/日。对棉籽的剥壳率可达99%以上。
刀板式剥壳机 结构如图2。主要工作部件是刀板转鼓和刀板座,刀板转鼓和刀板座上均装有刀板。刀板座呈凹形,通常由上下两块装配成一个整体,并带有调节机构,可根据油料颗粒的大小调节刀板座与刀板转鼓之间的间隙。当刀板转鼓旋转时,在刀板之间产生剪切作用,使油料的外壳破裂和脱落。主要适用于棉籽,特别是带绒棉籽的剥壳,剥壳效果较好,剥壳后的籽仁较完整,仁、壳易于分离,且皮壳碎屑较少,因而损失的油分亦较少。

图2刀板式剥壳机


刀板转鼓的直径和长度是刀板剥壳机的主要参数,一般为φ450×1200毫米,较大的达∅595×1 220毫米。主轴转速为950~1000转/分,配用功率20~30千瓦。剥壳能力一般为50~80吨/日,较大的达100~110吨/日。剥壳率为95%左右。
刀笼式剥壳机 主要由剥壳辊(或称刀轮)和笼篦组成。专用于花生剥壳,有锤击式和条杆辊筒式两种。锤击式剥壳机的剥壳辊是一个带锤片的转子,其下方是由方形栅条构成的半圆形笼篦。花生从进料机构落下时,旋转的锤片将果壳打破。未打破的花生则落入剥壳辊与笼篦之间继续受到打击,直到果壳破裂为止。已剥壳的花生仁和破碎的果壳穿过笼篦缝隙下落,果壳和碎屑被吸风系统吸走。剩下的花生仁和少量带壳的小粒花生则进入筛选机进行分离。被分离出来的带壳花生被送回剥壳机继续剥壳。剥壳辊的直径和长度一般为φ612×570毫米,转速为100转/分左右,配备10千瓦电动机,剥壳能力达48吨/日。条杆辊筒式剥壳机是用辊筒圆周上条杆的挤压、搓碎作用,使花生果破碎。农村小型油厂使用的条杆辊筒直径为250毫米,长300毫米,转速175~200转/分,配套动力1.7千瓦,剥壳能力可达600千克/小时。
刀笼式剥壳机剥壳辊的直径和长度一般为∅612×570毫米,笼篦的直径和长度相应为φ650×600毫米。剥壳辊的转速为100转/分左右,配备10千瓦电动机,剥壳能力达48吨/日。
离心式剥壳机 以甩盘和冲击板为主要工作部件的剥壳机,有立式和卧式两种。
卧式离心剥壳机的甩盘在垂直面内旋转,由两块圆形钢板制成,在两块圆形钢板之间径向安装着几块弧形叶片。冲击板用橡胶制成,安装在壳体内壁。油料从料斗进入甩盘中心,在甩盘高速旋转所产生的离心力的作用下,沿弧形叶片甩向冲击板,使外壳破裂脱落。已脱壳的油料从出料口排出,然后进行壳仁分离。甩盘的外径一般为φ410毫米,转速为1 660~2400转/分,配用功率2.5千瓦。剥壳能力为800千克/小时左右,剥壳率达90%。
立式离心剥壳机又称透平剥壳机,其甩盘内装有打板。当油料落下时,旋转的打板将外壳打破。未破裂的油料则被弹向甩盘周围的冲击板,使外壳受冲击作用而破裂。图3为一种新型的立式离心剥壳机,采用三层重叠的甩盘,每层甩盘由底板、盖板和叶片组成。这种剥壳机优越于卧式离心剥壳机,其剥壳能力较大,处理葵花籽可达100吨/日,剥壳率可达90%以上。

图3三层甩盘立式离心剥壳机


辊式剥壳机多用于篦麻籽剥壳。其结构原理与对辊式轧坯机类似(见油料轧坯机)。主要工作部件是一对光面轧辊,两轧辊长约800~1 000毫米,转速相同,约230转/分。两轧辊间距可以调节,一般为3~4毫米。油料进入两轧辊之间,在挤压力作用下达到剥壳目的。剥壳后的混合物落入下面的筛选机,并通过吸风系统进行壳仁分离。此外,还有一种辊式剥壳机由一个辊筒及其外圆上排列的许多滚柱所组成,适用于农村和小型油厂的花生、桐籽和茶籽剥壳。其辊筒的直径和长度为φ250~300毫米,转速为175~200转/分,配用功率1.7千瓦。剥壳能力达600千克/小时。

油料剥壳机oilseeds huller

用来剥除油料籽实皮壳以提取种仁的机械。油料的油脂大部分存在于种仁内,皮壳部分含油量很少,但其重量有的却占50%以上,在制油生产中会降低出油率和油脂质量,且增加生产中的困难,必须剥壳处理使仁壳分离。油料剥壳机械有:靠搓碎作用剥花生果、油菜籽的圆盘剥壳机;靠剪切作用剥棉籽壳的刀板式剥壳机;靠撞击作用剥向日葵籽的离心式剥壳机;靠挤压作用剥蓖麻籽的轧辊剥壳机等。

随便看

 

开放百科全书收录579518条英语、德语、日语等多语种百科知识,基本涵盖了大多数领域的百科知识,是一部内容自由、开放的电子版国际百科全书。

 

Copyright © 2000-2025 oenc.net All Rights Reserved
更新时间:2026/5/19 18:56:20